定制橱柜设计---尺寸篇
2018-10-08 16:09:35阅读量:10665
柴米油盐酱醋、酸甜苦辣咸,囊括人生百味。厨房做为一个家中最有爱、功能使用频率较高的区域,我们应该如何合理设计呢?台面做多高?顶柜多高合适?洗碗机放哪?柴米油盐拿着不顺手怎么办?尤其是中国式小户型厨房,面积小电器多,做菜油烟大,想要装好可真不容易。想要装修好厨房,首要做好橱柜设计。
好的橱柜设计,会让你的整个做饭过程行云流水一般,动作干净利落,台面漂亮整洁
做饭5大步骤:
冰箱区取食材 水槽区清洗 备餐区切菜 灶台区烹饪 盛盘上菜区

黄金区:放菜板、菜刀、切菜的区域。活儿最多,东西也最多。
银一区:灶台到墙边的位置,提前在此处放好盘子,炒完菜装盘,预备上桌。
银二区:水槽到墙边的空间,这个地方可以放沥水架。
橱柜布局
四种常见类型橱柜:L型、Ⅰ型、II 型、U型橱柜
应该pick哪一种橱柜?
I 型橱柜适合于厨房比较狭小的房间;

L型橱柜适合于厨房比较长、宽比较适中的房间;

II 型橱柜适合于厨房比较开放型的房间;

U型橱柜适合于厨房长宽比较大的房间;

综上:
1、选择不同形状的橱柜需要综合考虑橱柜台面和走道空间,找到两者的平衡点。
2、显而易见,操作台面决定了厨房的收纳容量,而走道的面积则决定了料理的舒适程度。
故我们在选择橱柜类型的时候,还是需要根据厨房面积及日常生活习惯来选择。
根据橱柜布局和做饭顺序,家居动线可以这样设计。

分配好区域,接下来就要考虑家具的尺寸了,尺寸越符合人体工程学,使用者越省力。
橱柜高度:
1、台面高度:依照家里经常做饭的人身高来参考,计算公式如下:
台面高度=身高/2+5~10CM
根据功能分区考虑,水槽、操作台和灶台的高度为:水槽台面在手肘以下5CM为佳,操作台以下10CM,灶台以下20CM。

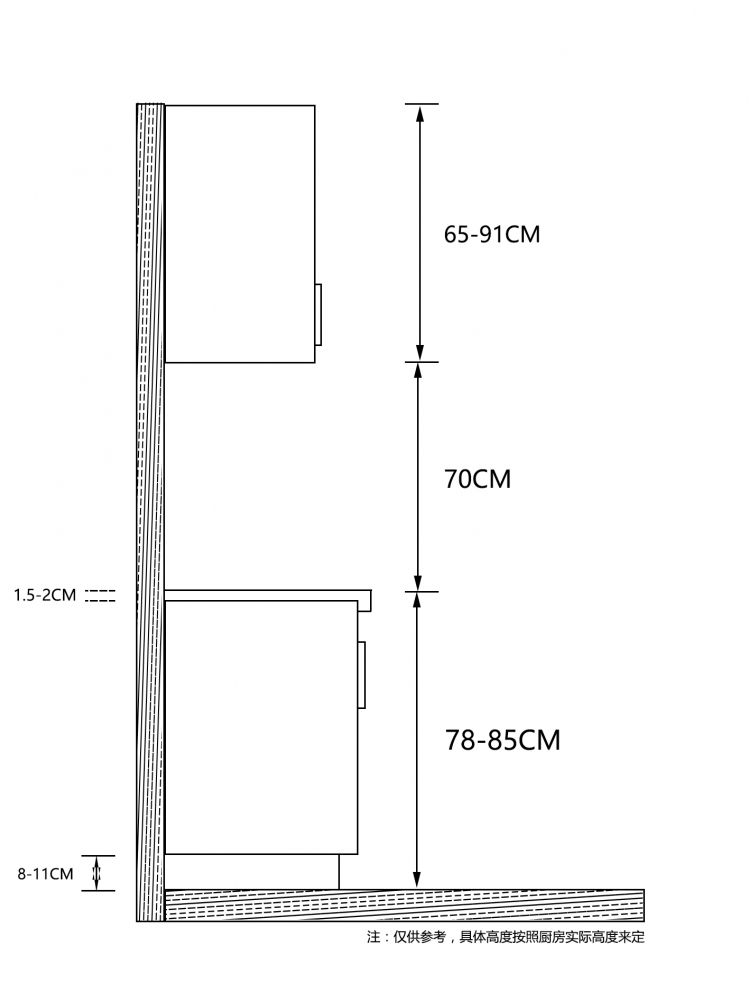
2、墙柜的高度:
墙柜(吊柜)离地面高度设计为1.6M左右,太低会显得压抑,太高使用起来会不大方便。与台面的距离在70CM左右。柜体的高度通常在78-85CM,根据厨房的高度来定。

3、烟机的高度:烟机离灶台的有效吸烟距离,一般参考标准是吸顶烟机距离台面75-80CM,侧吸烟机在35-45CM。

注意:
1、同时在设计时候还要考虑到厨房电器方面,冰箱如果是在后面散热的,两旁要各留50mm,比如说像顶部就是要留250mm空间,否则,散热慢,就是会影响到冰箱的功能。
2、橱柜整体高度不宜超过2300mm,否则不仅产生压抑感,而且上部成为储物死区。
橱柜宽度:
操作台面(除去水槽、灶具面)宽度不要少于1.2米,标准在1.8米以上。细化各个区域分别是:切菜区不少于0.5米,煮饭电器区不少于0.25米,装盘区不少于0.3米等。
橱柜深度:
台面参考深度为60CM,地柜的深度60CM,吊柜的深度32-35CM,吊柜的深度不宜太深,大于35CM以上取物会不太方便。
(注意:吊柜的高度和台面的深度有关系,台面深度越大,吊柜的高度越低,比如台面深70CM,那么吊柜距离台面的高度以50CM为佳。)

房屋特殊结构下的橱柜尺寸处理
直角和非直角墙
对于直角墙:
柜身设计尺寸=实际测量尺寸减去10-15mm;
台面设计尺寸=实际测量尺寸减去5-10mm;
吊柜身设计尺寸=实际测量尺寸减去5-10mm
对于非直角墙:
地柜身设计尺寸=实际测量最小尺寸减去10-15mm;
台面设计尺寸=里面实际测量最大尺寸减去5-10mm和外面实际测量最小尺寸减去5-10mm;
吊柜柜身设计尺寸=实际测量最小尺寸减去5-10mm
柱子的处理
可把切角柜变成不带切角柜避开柱子,但要注意地柜尽量不要设计抽屉或配件在内,因为地柜切角深度变浅一般难放置抽屉轨或配件
水表、水管、煤气管、煤气表的处理
如果水表安排在橱柜内,那就要设计在洗物柜或洗物柜旁侧地柜内,切记勿跨在柜之间;水管、煤气管可以把地柜深度尺寸改小,通过背板离墙(避免切角)避开水管、煤气管,吊柜呢,则要切角包住它们,切角尺寸以避开水管、煤气管最大尺寸为准;台面呢,如果煤气管从台面上进地柜,则台面也要切角避开煤气管,切角尺寸以避开水管最大尺寸为准(记得配台面废料补切角);至于煤气表,我们一般把它设计在一个吊柜内,而且要考虑读表的方便
梁柱的处理
可把柜子做矮,上做封板处理,封板工厂或现场做切角处理即可
橱柜设计与安装误差情况:
1、柜门或台面太长(橱柜进不了客户家门,台面无法上楼梯或进不了电梯;
2、立柜太高或高度不适,造成安装不便:设计立柜,尺寸预留必须合理;(预留太少,无法安装;预留太多,缝隙明显,影响橱柜效果。)
3、客户自购盆或炉,现场开孔,容易出现台面不够宽的问题;
4、切角吊柜切角太大,安装位不够,致使现场无法装,有时吊柜勉强安装上,吊柜也无法承受,无法调整;
5、客户厨房比较小,吊柜门门板过大过宽,吊柜开门时门板碰到天花的吊灯;

衣食住行,作为现代中国人来说,厨房不仅仅让人想到烟火气,也应具备生活的趣味。为家人准备每一餐里,饱含着对家人的爱。所以如果你爱你的家人,打造一个舒适的厨房很有必要,一起煮健康营养的美食,和谐共处,这样的家庭生活才是幸福家庭的源头啊。
赞(
踩(





